Más que un conjunto de casas, Pueblo Colibrí es una comunidad consciente donde se fomenta la colaboración, el uso eficiente de los recursos y una conexión auténtica con el entorno.

 

pueblo colibrí

Un proyecto único de 36 casas diseñadas bajo el sello inconfundible de Martín Gómez Arquitectos. Un uso del territorio consciente, amable y regenerativo, tanto ecológica como socialmente.

Next

entre el bosque y el mar


En pleno corazón de La Barra, a solo 400 m del icónico puente ondulante y al inicio del Camino de Los Flamencos.

Next

co-living


Pueblo Colibrí propone viviendas hermanadas, pensadas especialmente para quienes buscan un retorno a lo auténtico, a lo íntimo, a lo natural.

Next

“Arquitectura, comunidad en naturaleza y equilibrio”

Next

guest house


Una experiencia auténtica de vida en el pueblo, con rincones acogedores para desayunar y relajarse, y un espacio de trabajo abierto tanto a huéspedes como a vecinos.

Next

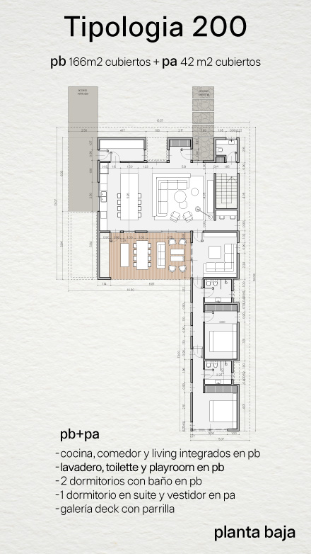
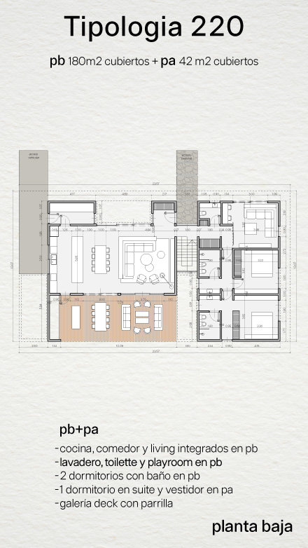
tipología de casas

36 lotes, guest house y clubhouse


Lotes amplios de 1.000 a 1.500 m², y viviendas de entre 120 y 250 m² cada una integrada de forma armónica con el entorno.

Next

Contacto